Symofinia - prestiż i styl Bydgoszcz, Centrum

5 pokoi
81.07 m²
11 500,00 zł/m2
parter
PRN-MS-6571
Oblicz ratę kredytu

932 305 zł

Symofinia - prestiż i styl
Bez prowizji

Szczegóły oferty

Inwestycja Symfonia
Symbol oferty PRN-MS-6571
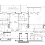
Powierzchnia 81,07 m²
Liczba pokoi 5
Liczba sypialni 4
Rodzaj budynku apartamentowiec
Technologia budowlana silikat
Standard
Piętro parter
Liczba pięter w budynku 4
Stan lokalu deweloperski
Instalacje nowe
Balkon jest
Rok budowy 2024
Otoczenie centrum miasta
Ogrzewanie miejskie
Winda tak
Przystosowania dla niepełnosprawnych tak
Pomieszczenia
Aleksandra Kunach

Aleksandra Kunach

Właścicel biura

Napisz wiadomość 147 Ofert

Opis nieruchomości

Prestiżowa lokalizacja w sercu Dzielnicy Muzycznej!
Symfonia to połączenie elegancji, wygody i nowoczesności. 
Propozycja dla aktywnych ludzi, którzy lubią mieć w pobliżu wszystkie atrakcje, które oferuje centrum miasta.

Osiedle będzie się składać z 3 budynków usytuowanych w sąsiedztwie zabytkowych willi i kampusu Akademii Muzycznej. 
Na elewacji znajdować się będzie naturalny kamień. To tylko jeden z wyróżniających elementów.

Mieszkańcy będą mogli korzystać ze wspólnego ogrodu, stacji ładowania samochodów czy rowerni.
Dla najmłodszych mieszkańców przygotowany zostanie plac zabaw. Cały teren będzie monitorowany.
Do dyspozycji mieszkańców podziemna hala garażowa, windy, oraz przestronne części wspólne.
Dodatkowo na dachach budynków zainstalowano panele fotowoltaiczne, do oświetlenie części wspólnych.

W sprzedaży mieszkania od 25 m2. Od kawalerek po duże, czteropokojowe mieszkania.
Wszystkie lokale są klimatyzowane i posiadają ogrzewanie podłogowe. 
Apartamenty na ostatniej kondygnacji posiadają wysokość 290 cm.
Mieszkania posiadają ogródki, ogrody zimowe albo przestronne loggie.

Zakończenie budowy:
budynek A - III kwartał 2024 rok

Lokalizacja nieruchomości

Kalkulatory

Kalkulator kredytowy

Wysokość raty

PLN
%

Kalkulator kosztów

Taksa notarialna
(opłata notarialna)

Wniosek o wpis do WKW

VAT od prowizji
agencji nieruchomości

Vat od taksy notarialnej
(opłaty notarialnej)

Prowizja agencji nieruchomości

Wypisy aktu notarialnego

Razem

Uwaga: mogą wystąpić dodatkowe opłaty za założenie księgi wieczystej oraz ustanowienie hipoteki.

PLN
PLN
PLN
PLN
PLN
%
PLN

Podobne oferty

Bez prowizji
Video

Symofinia - prestiż i styl

Bydgoszcz, Centrum

4 pokoje 86 m2 11 700,00 zł/m2
Bez prowizji
Video
Bez prowizji
Video

Symofinia - prestiż i styl

Bydgoszcz, Centrum

4 pokoje 87 m2 11 800,00 zł/m2
Bez prowizji
Video
Bez prowizji
Video

Symofinia - prestiż i styl

Bydgoszcz, Centrum

3 pokoje 59 m2 15 317,77 zł/m2
Bez prowizji
Video
Bez prowizji

Symofinia - prestiż i styl

Bydgoszcz, Centrum

3 pokoje 60 m2 11 900,00 zł/m2
Bez prowizji

Właścicel biura

Proszę wprowadzić poprawne imię i nazwisko
Proszę wprowadzić poprawny numer telefonu
Proszę wprowadzić poprawny adres e-mail
Proszę zaznaczyć wymagane zgody
Rozwiąż równanie:
16 5
Niepoprawny wynik