Mieszkanie w Fordonie w domu dwurodzinnym Bydgoszcz, Fordon, Stary Fordon

2 pokoje
71.00 m²
6 267,61 zł/m2
1 piętro
PRN-MS-7418
Oblicz ratę kredytu

445 000 zł

Mieszkanie w Fordonie w domu dwurodzinnym

Szczegóły oferty

Symbol oferty PRN-MS-7418
Powierzchnia 71,00 m²
Liczba pokoi 2
Rodzaj budynku dom wielorodzinny
Piętro 1
Liczba pięter w budynku 1
Garaż garaż pod budynkiem
Stan lokalu do remontu
Okna PCV
Instalacje dobre
Rok budowy 1990
Gaz jest
Woda jest
Ogrzewanie elektryczne
Umeblowanie tak
Usytuowanie dwustronne
Rolety antywłamaniowe tak
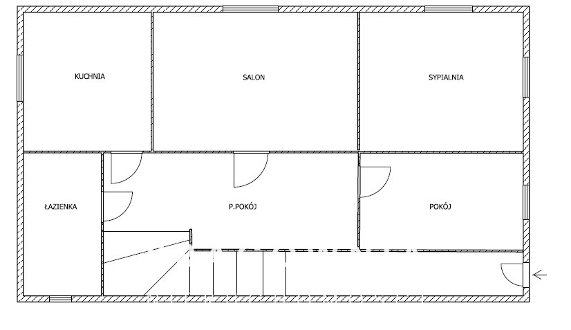
Pomieszczenia
Daria Komendarska

Daria Komendarska

Doradca ds. nieruchomosci

Napisz wiadomość 9 Ofert

Opis nieruchomości

Na sprzedaż 3-pokojowe mieszkanie w Starym Fordonie – z ogrodem i dwoma garażami.

OPIS OFERTY:
Na sprzedaż oferujemy komfortowe mieszkanie położone w spokojnej, zielonej części Starego Fordonu, w bliskiej odległości od Wisły.
To idealna propozycja dla osób poszukujących ciszy, a jednocześnie dogodnego dostępu do infrastruktury miejskiej.
Nieruchomość łączy zalety mieszkania z funkcjonalnością domu jednorodzinnego.

UKŁAD MIESZKANIA:
Mieszkanie znajduje się na pierwszym piętrze w domu dwurodzinnym.
W jego skład wchodzą:
- dwie sypialnie,
- przestronny salon,
- osobna kuchnia,
- łazienka,
- dwie piwnice,
- dwa garaże,
- zadbany ogródek.
Lokal został urządzony w latach 90. i wymaga odświeżenia lub remontu, w zależności od indywidualnych preferencji.
Okna w pokojach wychodzą na stronę południowo-zachodnią, co zapewnia doskonałe doświetlenie wnętrz.

STANDARD:
Mieszkanie jest gotowe do zamieszkania. Obecnie jest ogrzewanie elektryczne.
Wymiana ogrzewania np. na gaz, nie stanowiłaby większego problemu (przyłącze w budynku).
W całym mieszkaniu na podłodze płytki ceramiczne. 
Ustawna łazienka wyposażona w wc, umywalkę i wannę pomieści spokojnie również pralkę.
Istnieje również możliwość przeniesienia pralni do piwnicy.

BUDYNEK:
Ten 30-letni dom nie wymaga remontów. 
Jest ocieplony. Dach nie przecieka.
Piękne, drewniane ogrodzenie wokół posesji.
Zadbany ogród z miejscem do grillowania.

LOKALIZACJA:
Stary Fordon od kilku lat zaczyna zmieniać swoje oblicze.
Fordoński Rynek przeszedł rewitalizacje i stał się tętniącym życiem punktem tej części miasta.
Odnowione stare kamienice przeplatają się z nowymi inwestycjami.
A do tego bliskość Wisły - bulwar nad Wisłą stanowi idealne miejsce do rekreacji i wypoczynku.

INFORMACJE DODATKOWE:
Mieszkanie jest dostępne od zaraz.
Meble pozostają w cenie mieszkania.
Dwa garaże dostępne:
- garaż w bryle budynku,
- garaż blaszany na posesji
Każdy w cenie 20 000 zł.

Opłaty wg zużycia - prąd i woda + śmieci.

Na sprzedaż oferujemy komfortowe mieszkanie położone w spokojnej, zielonej części Starego Fordonu, w bliskiej odległości od Wisły. To idealna propozycja dla osób poszukujących ciszy, a jednocześnie dogodnego dostępu do infrastruktury miejskiej. Nieruchomość łączy zalety mieszkania z funkcjonalnością domu jednorodzinnego.
 

Lokalizacja nieruchomości

Kalkulatory

Kalkulator kredytowy

Wysokość raty

PLN
%

Kalkulator kosztów

Podatek od czynności cywilno-prawnych

Taksa notarialna
(opłata notarialna)

Wniosek o wpis do WKW

VAT od prowizji
agencji nieruchomości

Vat od taksy notarialnej
(opłaty notarialnej)

Prowizja agencji nieruchomości

Wypisy aktu notarialnego

Razem

Uwaga: mogą wystąpić dodatkowe opłaty za założenie księgi wieczystej oraz ustanowienie hipoteki.

PLN
PLN
PLN
PLN
PLN
PLN
%
PLN

Podobne oferty

Bez prowizji

Ostatni etap osiedla - zarezerwuj już teraz!

Bydgoszcz, Fordon

2 pokoje 35 m2 10 000,00 zł/m2
Bez prowizji
Bez prowizji

Ostatni etap osiedla - zarezerwuj już teraz!

Bydgoszcz, Fordon

2 pokoje 32 m2 10 500,00 zł/m2
Bez prowizji
Bez prowizji

Ostatni etap osiedla - zarezerwuj już teraz!

Bydgoszcz, Fordon

3 pokoje 49 m2 9 300,00 zł/m2
Bez prowizji
Bez prowizji

Ostatni etap osiedla - zarezerwuj już teraz!

Bydgoszcz, Fordon

3 pokoje 49 m2 9 600,00 zł/m2
Bez prowizji

Doradca ds. nieruchomosci

Proszę wprowadzić poprawne imię i nazwisko
Proszę wprowadzić poprawny numer telefonu
Proszę wprowadzić poprawny adres e-mail
Proszę zaznaczyć wymagane zgody
Rozwiąż równanie:
19 3
Niepoprawny wynik