Hale magazynowe, wysokie składowanie Bydgoszcz

612.00 m²
18,00 zł/m2
PRN-HW-7379

13 610 zł

Hale magazynowe, wysokie składowanie
Video

Szczegóły oferty

Symbol oferty PRN-HW-7379
Powierzchnia 612,00 m²
Standard
Opłaty wg liczników gaz, prąd, woda
Typ kaucji do uzgodnienia
Podst. materiał budowlany płyta warstwowa
Rok budowy 2024
Przeznaczenie hali magazynowy
Czynsz najmu netto /m2 18 PLN
Dojazd asfalt
Otoczenie zakład produkcyjny
Ogrzewanie gazowe
Przystosowania dla niepełnosprawnych tak
Położenie teren przemysłowy
Plac utwardzany tak
Materiał konstrukcyjny płyta warstwowa
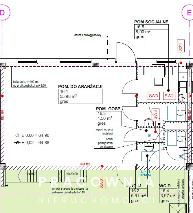
Pomieszczenia
Liczba pomieszczeń biurowych 1
Powierzchnia pomieszczeń biurowych od [m2] 56 m2
Liczba pomieszczeń magazynowych 1
Powierzchnia pomieszczeń magazynowych [m2] 526 m2
Liczba pomieszczeń socjalnych 1
Powierzchnia pomieszczeń socjalnych [m2] 8 m2
Liczba pomieszczeń sanitarnych 3
Danuta Bombicka

Danuta Bombicka

Specjalista ds. Nieruchomości Komercyjnych

Napisz wiadomość 86 Ofert

Opis nieruchomości

OPIS OFERTY:
Hale magazynowe wysokiego składowania w Parku Przemysłowym, moduły od. 527-566 m2.
Przy każdej hali pomieszczenia socjalno- biurowe o pow.85-92 m2.
Wysokość składowania 10 m.
Doki rozładunkowe oraz bramy z poziomu 0.
Przykładowa oferta modułu o pow. 527 m2 plus pomieszczenia biurowo-socjalne o pow. 85 m2, przy okresie najmu 60 miesięcy.
Przy zapotrzebowaniu na większą ilość modułów zapraszamy do rozmów.


DANE TECHNICZNE:
- bramy segmentowe dokowe 3 x 3,3 m
- bramy segmentowe z poziomu „0” wym. 4 x 4,2 m
- oświetlenie LED, w pomieszczeniach magazynowych 150 lx, przy dokach 300 lx, pomieszczenia biurowe 50 lx
- klapy oddymiające
- dopuszczalne obciążenie ogniowe do 4000 MJ/m2
- destratyfikatory
- posadzka nośność 5T/m2, beton klasy C20/25 wykończony utwardzaczem
- certyfikat BREEAM
- parametry cieplne, ogrzewanie: hala min. 14 °C, biura min. 20 °C
- izolacja: ściany zewnętrzne-płyta warstwowa z wełny mineralnej gr.10 cm lub 17,5 cm; dach- 13 cm wełny mineralnej lub zamiennie PIR

POMIESZCZENIA SOCJALNO-BIUROWE:
- biuro 56 m2
- WC damskie ok. 4 m2
- WC męskie 5,6 m2
- pomieszczenie socjalne 8 m2

LOKALIZACJA:
Park Przemysłowy.
Odległości:
- lotnisko 10 km
- Dworzec Główny 7 km
- komunikacja miejska 100 m

INFORMACJE DODATKOWE:
Minimalny okres wynajmu 36 miesięcy.
Czynsz bazowy 5 €/m2
Czynsz efektywny 4,25 €/ m2 (-50% czynszu za pow. magazynowe przez 18 miesięcy).
Czynsz 11,50 €/m2 pow. biurowe

DODATKOWE KOSZTY:
- media wg. zużycia (opomiarowane)
- opłata eksploatacyjna 7,65 zł/m2 (w tym m.in. podatek od nieruchomości i gruntów, odśnieżanie dróg, parkingu, dachu, oświetlenie terenu zewnętrznego, ochrona i sprzątanie terenu, utrzymanie zieleni, zarządzanie, ubezpieczenie hali)

Materiał wideo

Lokalizacja nieruchomości

Podobne oferty

Hala, biura, plac utwardzony

Bydgoszcz, Brdyujście

5 168 m2 0,00 zł/m2

Hala 676 m2, h-7,4m

Bydgoszcz, Czyżkówko

676 m2 0,00 zł/m2

Hala ogrzewana - pow. 770 m2

Bydgoszcz, Zimne Wody

770 m2 20,00 zł/m2

Hala 700 m2, z suwnicami 2x 5T

Bydgoszcz, Osowa Góra

700 m2 25,00 zł/m2

Specjalista ds. Nieruchomości Komercyjnych

Proszę wprowadzić poprawne imię i nazwisko
Proszę wprowadzić poprawny numer telefonu
Proszę wprowadzić poprawny adres e-mail
Proszę zaznaczyć wymagane zgody
Rozwiąż równanie:
19 4
Niepoprawny wynik