Inwestycja przy Wiśle Bydgoszcz, Fordon, Stary Fordon

2 pokoje
56.07 m²
9 950,06 zł/m2
3 piętro
PRN-MS-6778
Oblicz ratę kredytu

557 900 zł

Inwestycja przy Wiśle
Bez prowizji
Video

Szczegóły oferty

Inwestycja Mieszkania z widokiem na Wisłę
Symbol oferty PRN-MS-6778
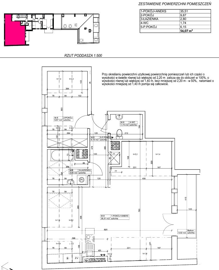
Powierzchnia 56,07 m²
Liczba pokoi 2
Liczba sypialni 2
Rodzaj budynku nowe budownictwo
Technologia budowlana silikat
Standard
Piętro 3
Liczba pięter w budynku 3
Stan lokalu deweloperski
Instalacje nowe
Balkon jest
Rok budowy 2024
Otoczenie rzeka
Ogrzewanie centralne
Pomieszczenia
Rodzaj kuchni aneks kuchenny - połączony z salonem
Ewelina Czajkowska

Ewelina Czajkowska

Doradca ds. nieruchomosci

Napisz wiadomość 109 Ofert

Opis nieruchomości

Mieszkania z widokiem na Wisłę!

Nasza najnowsza propozycja to inwestycja położona w Starym Fordonie. Dzielnica właśnie zyskała drugie życie.

Przebudowano wiele uliczek, odnowiono kamienice a płytę rynku wyposażono w efektowną fontannę.
Nabrzeże Wisły przeszło gruntowną rewitalizację: zamontowano nowe oświetlenie, ławki i siedziska czy stojaki na rowery.
Świetne miejsce do wypoczynku, rekreacji, spływów kajakowych oraz doskonały punkt widokowy na Wisłę. 

Inwestycja to kameralny budynek mieszkalny o 3 kondygnacjach naziemnych z poddaszem użytkowym. 
Zaprojektowano tutaj 16 mieszkań: od 30 do 57 m2, lokal usługowy oraz 6 garaży.
Dwa mieszkania w parterze przystosowano w pełni dla potrzeb osób niepełnosprawnych. 

Prezentowane mieszkanie posiada 56,07 m2 i znajduje się na 3. piętrze.
Układ składa się z salonu, sypialni, łazienki i wc.
Do mieszkania przynależy balkon.


Budynek jest świetnie zlokalizowany.
Przystanki komunikacji miejskiej znajdują się zaraz obok, a najbliższy market oddalony jest o kilka kroków.
Po drugiej stronie ulicy, przy Synagodze, niedawno powstał letni ogródek z ofertą gastronomiczną.  

Budowa zakończona.

Materiał wideo

Lokalizacja nieruchomości

Kalkulatory

Kalkulator kredytowy

Wysokość raty

PLN
%

Kalkulator kosztów

Taksa notarialna
(opłata notarialna)

Wniosek o wpis do WKW

VAT od prowizji
agencji nieruchomości

Vat od taksy notarialnej
(opłaty notarialnej)

Prowizja agencji nieruchomości

Wypisy aktu notarialnego

Razem

Uwaga: mogą wystąpić dodatkowe opłaty za założenie księgi wieczystej oraz ustanowienie hipoteki.

PLN
PLN
PLN
PLN
PLN
%
PLN

Podobne oferty

Bez prowizji

Ostatni etap osiedla - zarezerwuj już teraz!

Bydgoszcz, Fordon

3 pokoje 49 m2 9 300,00 zł/m2
Bez prowizji
Bez prowizji

Ostatni etap osiedla - zarezerwuj już teraz!

Bydgoszcz, Fordon

3 pokoje 49 m2 9 600,00 zł/m2
Bez prowizji
Bez prowizji

Ostatni etap osiedla - zarezerwuj już teraz!

Bydgoszcz, Fordon

3 pokoje 49 m2 9 400,00 zł/m2
Bez prowizji
Bez prowizji

Ostatni etap osiedla - zarezerwuj już teraz!

Bydgoszcz, Fordon

3 pokoje 46 m2 9 500,00 zł/m2
Bez prowizji

Doradca ds. nieruchomosci

Proszę wprowadzić poprawne imię i nazwisko
Proszę wprowadzić poprawny numer telefonu
Proszę wprowadzić poprawny adres e-mail
Proszę zaznaczyć wymagane zgody
Rozwiąż równanie:
16 2
Niepoprawny wynik