3 pokoje w wysokim standardzie! Blok 2017 Bydgoszcz, Wyżyny

3 pokoje
55.95 m²
10 705,99 zł/m2
parter
PRN-MS-7432
Oblicz ratę kredytu

599 000 zł

3 pokoje w wysokim standardzie! Blok 2017

Szczegóły oferty

Symbol oferty PRN-MS-7432
Powierzchnia 55,95 m²
Powierzchnia użytkowa [m2] 55,95 m²
Liczba pokoi 3
Liczba sypialni 2
Rodzaj budynku nowe budownictwo
Technologia budowlana beton komórkowy
Standard
Opłaty wg liczników prąd
Piętro parter
Liczba pięter w budynku 2
Stan lokalu bardzo dobry
Mies. czynsz admin. 800 PLN
Okna PCV
Instalacje nowe
Rok budowy 2017
Gaz brak
Woda tak - miejska
Dojazd asfalt
Otoczenie działki zabudowane
Ogrzewanie miejskie
Umeblowanie umeblowane
Usytuowanie środkowe
Przystosowania dla niepełnosprawnych tak
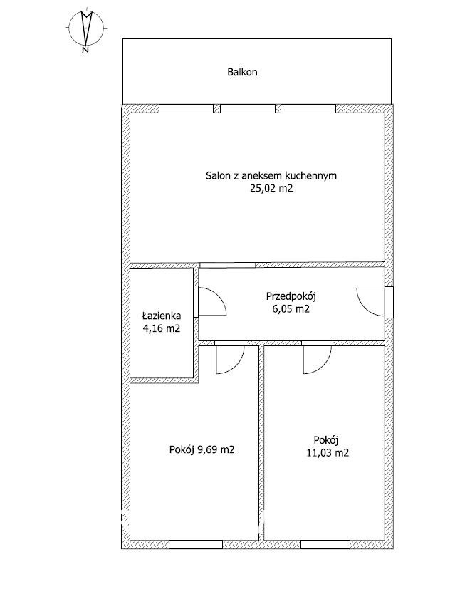
Pomieszczenia
Powierzchnia pokoi 25 m2, 11 m2, 9,69 m2
Podłogi pokoi płytki, panele
Typ kuchni aneks kuchenny połączony z jadalnią i salonem
Rodzaj kuchni aneks kuchenny
Podłoga kuchni płytki
Wyposażenie kuchni zmywarka, zabudowa kuchenna, lodówka, płyta indukcyjna, piekarnik, okap
Typ łazienki razem z wc
Powierzchnia łazienki [m2] 4,16 m2
Glazura łazienki glazura
Podłoga łazienki płytki
Wyposażenie łazienki WC, umywalka, prysznic, lustro
Powierzchnia przedpokoi 6,05 m2
Podłoga przedpokoi panele podłogowe
Dorota Thomas

Dorota Thomas

Doradca ds. nieruchomosci

Napisz wiadomość 138 Ofert

Opis nieruchomości

OPIS OFERTY:
Oferujemy na sprzedaż komfortowe, trzypokojowe mieszkanie położone w nowym budownictwie na Wyżynach. 
Lokal o powierzchni niespełna 56 m2 znajduje się na parterze bloku z 2017 r. 

Wyróżnia się przemyślanym i funkcjonalnym układem oraz dobrym standardem.
Idealna propozycja dla rodziny na start lub pary.
Mieszkanie bez barier architektonicznych, zapewniające wygodę i swobodę użytkowania.

UKŁAD POMIESZCZEŃ:
W skład mieszkania wchodzą:
- przestronny salon z aneksem kuchennym o pow. 25,02 m2 z wyjściem na balkon
- łazienka z WC o pow. 4,16 m2
- dwa osobne pokoje o pow. 11,03 m2 i 9,69 m2
- duży przedpokój 6,05 m2 z pojemną szafą.
Ekspozycja okien: północ - południe. 

STANDARD WYKOŃCZENIA:
Mieszkanie jest w bardzo dobrym stanie technicznym.  

Gotowe do wprowadzenia bez dodatkowych nakładów finansowych. 
Podłogi - panele, płytki
Ściany - gładzie
Instalacje - nowe, sprawne
Okna - PCV, trzyszybowe, wyposażone w moskitiery 
Drzwi - nowe wewnętrzne, wymienione, firmy Porta, zewnętrzne antywłamaniowe
Kuchnia jest wykonana na wymiar przez stolarza i wyposażona w sprzęt AGD (nowa płyta indukcyjna oraz piekarnik). 

BUDYNEK:
Kameralny budynek z 2017 r., znajdujący się na zamkniętym i monitorowanym terenie.
Możliwość parkowania wzdłuż ulicy przed budynkiem. 

LOKALIZACJA:
Świetna lokalizacja w Bydgoszczy - ul. Władysława Bełzy na Wyżynach to adres w spokojnej, dobrze skomunikowanej części miasta, łączący wygodę życia codziennego z łatwym dostępem do usług i komunikacji. Okolica ma charakter mieszkalny z niską zabudową i lokalnymi udogodnieniami. W pobliżu znajdują się sklepy, punkty usługowe, przystanki tramwajowe, autobusowe oraz tereny spacerowe.
Szybki dojazd do centrum oraz pozostałych dzielnic. 

INFORMACJE DODATKOWE:
Do mieszkania przynależy komórka lokatorska o powierzchni 2 m2 (w cenie).
Możliwość pozostawienia umeblowania. 
Dostępność lokalu do przekazania - lipiec/ sierpień.  
Opłaty - czynsz około 800 zł/ 4 osoby + prąd. 

Zapraszam na prezentację!

Lokalizacja nieruchomości

Kalkulatory

Kalkulator kredytowy

Wysokość raty

PLN
%

Kalkulator kosztów

Podatek od czynności cywilno-prawnych

Taksa notarialna
(opłata notarialna)

Wniosek o wpis do WKW

VAT od prowizji
agencji nieruchomości

Vat od taksy notarialnej
(opłaty notarialnej)

Prowizja agencji nieruchomości

Wypisy aktu notarialnego

Razem

Uwaga: mogą wystąpić dodatkowe opłaty za założenie księgi wieczystej oraz ustanowienie hipoteki.

PLN
PLN
PLN
PLN
PLN
PLN
%
PLN

Podobne oferty

Przestronne 4 pokoje! Wyżyny B3

Bydgoszcz, Wyżyny

4 pokoje 64 m2 8 008,18 zł/m2

Doradca ds. nieruchomosci

Proszę wprowadzić poprawne imię i nazwisko
Proszę wprowadzić poprawny numer telefonu
Proszę wprowadzić poprawny adres e-mail
Proszę zaznaczyć wymagane zgody
Rozwiąż równanie:
13 5
Niepoprawny wynik