Widok na Balaton • Nowa inwestycja! Bydgoszcz, Bartodzieje

2 pokoje
34.80 m²
14 655,17 zł/m2
7 piętro
PRN-MS-7335
Oblicz ratę kredytu

510 000 zł

Widok na Balaton • Nowa inwestycja!

Szczegóły oferty

Symbol oferty PRN-MS-7335
Powierzchnia 34,80 m²
Powierzchnia użytkowa [m2] 34,80 m²
Liczba pokoi 2
Liczba sypialni 1
Rodzaj budynku apartamentowiec
Standard
Piętro 7
Liczba pięter w budynku 8
Garaż garaż podziemny
Stan lokalu do wykończenia
Okna aluminiowe
Instalacje nowe
Balkon jest
Liczba balkonów 1
Rok budowy 2026
Woda tak - miejska
Ogrzewanie miejskie
Winda tak
Pomieszczenia
Rodzaj kuchni aneks kuchenny
Typ łazienki razem z wc
Liczba łazienek 1
Liczba przedpokoi 1
Małgorzata Regent

Małgorzata Regent

Doradca ds. nieruchomosci

Napisz wiadomość 63 Ofert

Opis nieruchomości

OPIS OFERTY:
Oferujemy na sprzedaż jasny, komfortowy apartament idealny dla dwojga, położony w nowoczesnej inwestycji – ul. Gajowa, Bydgoszcz.
Mieszkanie wyróżnia się wyjątkową lokalizacją – z okien rozpościera się panoramiczny widok na Bydgoski Balaton, gwarantując codzienny kontakt z naturą, zielenią i spokojem.
Nieruchomość znajduje się w nowo powstającym budynku o wysokim standardzie, co zapewnia komfort i bezpieczeństwo przyszłym właścicielom.

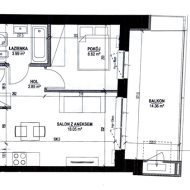
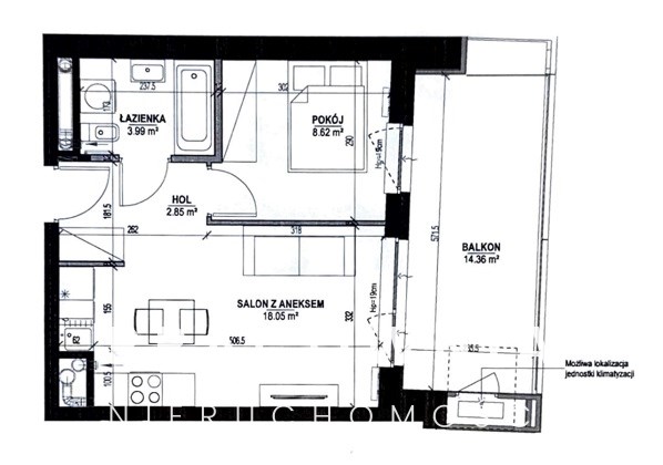
UKŁAD POMIESZCZEŃ:
• salon z aneksem kuchennym – jasna, otwarta przestrzeń z wyjściem na taras,
• komfortowa sypialnia,
• łazienka z miejscem na pralkę,
• funkcjonalny przedpokój,
• taras 15 m² z widokiem na Balaton.

STANDARD:

• Nowy budynek o podwyższonym standardzie wykonania,
• Duże okna zapewniające świetne doświetlenie wnętrz,
• Drzwi antywłamaniowe,
• Nowoczesne instalacje,
• Możliwość wykończenia mieszkania według własnych preferencji.

BUDYNEK:
• Nowoczesna, elegancka architektura,
• Cichobieżne windy,
• Monitoring i wysoki poziom bezpieczeństwa,
• Podziemna hala garażowa,
• Przestrzenie wspólne wykończone w wysokim standardzie.

LOKALIZACJA:

Mieszkanie znajduje się w jednej z najbardziej pożądanych części Bydgoszczy, na Bartodziejach:
• Bezpośrednie sąsiedztwo Bydgoskiego Balatonu,
• Tereny spacerowe, ścieżki rowerowe i rekreacyjne,
• Doskonała komunikacja z centrum miasta,
• W pobliżu sklepy, punkty usługowe, szkoły, przychodnie,
• Spokojne i zielone otoczenie, idealne do zamieszkania.

INFORMACJE DODATKOWE:
• Możliwość zakupu miejsca w garażu podziemnym,
• Dodatkowym atutem jest przestronny, 15-metrowy taras, który doskonale sprawdzi się jako miejsce relaksu, odpoczynku i spotkań w ciepłe dni. taras
• Idealne mieszkanie dla pary, singla lub pod inwestycję,
• Świetna oferta zarówno do zamieszkania, jak i na wynajem.

Zapraszam na prezentację!

Lokalizacja nieruchomości

Kalkulatory

Kalkulator kredytowy

Wysokość raty

PLN
%

Kalkulator kosztów

Taksa notarialna
(opłata notarialna)

Wniosek o wpis do WKW

VAT od prowizji
agencji nieruchomości

Vat od taksy notarialnej
(opłaty notarialnej)

Prowizja agencji nieruchomości

Wypisy aktu notarialnego

Razem

Uwaga: mogą wystąpić dodatkowe opłaty za założenie księgi wieczystej oraz ustanowienie hipoteki.

PLN
PLN
PLN
PLN
PLN
%
PLN

Podobne oferty

Apartament inwestycyjny w topowej lokalizacji!

Bydgoszcz, Bartodzieje

1 pokoj 27 m2 13 908,26 zł/m2

Doradca ds. nieruchomosci

Proszę wprowadzić poprawne imię i nazwisko
Proszę wprowadzić poprawny numer telefonu
Proszę wprowadzić poprawny adres e-mail
Proszę zaznaczyć wymagane zgody
Rozwiąż równanie:
24 7
Niepoprawny wynik