Unikatowa inwestycja w sercu Bydgoszczy Bydgoszcz, Centrum

1 pokoj
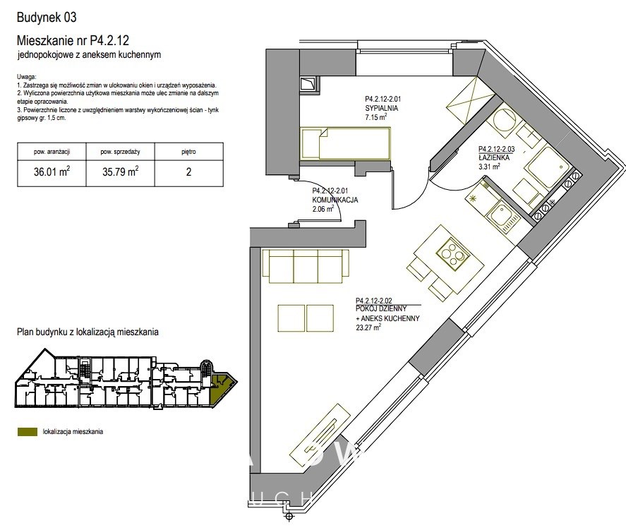
35.79 m²
11 874,83 zł/m2
2 piętro
PRN-MS-5997
Oblicz ratę kredytu

425 000 zł

Unikatowa inwestycja w sercu Bydgoszczy
Bez prowizji
Video

Szczegóły oferty

Inwestycja UNIQ
Symbol oferty PRN-MS-5997
Powierzchnia 35,79 m²
Liczba pokoi 1
Rodzaj budynku blok
Technologia budowlana cegła
Standard
Piętro 2
Liczba pięter w budynku 2
Stan lokalu deweloperski
Okna PCV
Instalacje nowe
Balkon brak
Rok budowy 2024
Otoczenie centrum miasta
Ogrzewanie miejskie
Pomieszczenia
Rodzaj kuchni aneks kuchenny - połączony z salonem
Michał Pacoszyński

Michał Pacoszyński

Właściciel biura

Napisz wiadomość 70 Ofert

Opis nieruchomości

UNIQ to jedyna taka inwestycja na mapie Bydgoszczy.

Budynek znajduje się w ścisłym centrum miasta, w trójkącie ulic: Pomorskiej, Gdańskiej i Śniadeckich.
Po sąsiedzku mamy sklepy, restauracje, kawiarnie czy siłownie.
Spacer do kina, filharmonii czy opery zajmie kilka minut.
Tak samo jak dojście do Wyspy Młyńskiej czy Parku Kochanowskiego. 

Inwestycja została idealnie wkomponowana w zabytkową architekturę centrum miasta.
Trzypiętrowy budynek łączy elegancję z nowoczesnością.
Będzie on wyposażony w monitoring i światłowód.
Mieszkańcy będą mogli korzystać z komórek lokatorskich i rowerowni.
Na uwagę zasługuje przepięknie zaprojektowana klatka schodowa. 

Łącznie zaprojektowano 43 mieszkania. Oddawane będą w stanie deweloperskim. 
Kawalerki i dwupokojowe, w przedziale: 26-54 m2.
Mieszkania będą posiadały zróżnicowane wysokości - najwyższa to aż 450 cm. 
W standardzie: parapety z konglomerat, panoramiczne okna i wideodomofony.

Inwestycja stworzona dla inwestorów i miłośników życia w centrum miasta.

Zakończenie budowy: czerwiec 2024 roku.

Materiał wideo

Kalkulatory

Kalkulator kredytowy

Wysokość raty

PLN
%

Kalkulator kosztów

Taksa notarialna
(opłata notarialna)

Wniosek o wpis do WKW

VAT od prowizji
agencji nieruchomości

Vat od taksy notarialnej
(opłaty notarialnej)

Prowizja agencji nieruchomości

Wypisy aktu notarialnego

Razem

Uwaga: mogą wystąpić dodatkowe opłaty za założenie księgi wieczystej oraz ustanowienie hipoteki.

PLN
PLN
PLN
PLN
PLN
%
PLN

Podobne oferty

Mieszkanie idealne pod inwestycje, wyposażone

Bydgoszcz, Centrum

4 pokoje 73 m2 6 712,33 zł/m2
Bez prowizji
Video

Unikatowa inwestycja w sercu Bydgoszczy

Bydgoszcz, Centrum

2 pokoje 37 m2 11 995,64 zł/m2
Bez prowizji
Video
Bez prowizji
Video

Unikatowa inwestycja w sercu Bydgoszczy

Bydgoszcz, Centrum

2 pokoje 41 m2 11 716,82 zł/m2
Bez prowizji
Video
Bez prowizji
Video

Unikatowa inwestycja w sercu Bydgoszczy

Bydgoszcz, Centrum

2 pokoje 38 m2 11 817,23 zł/m2
Bez prowizji
Video

Właściciel biura

Proszę wprowadzić poprawne imię i nazwisko
Proszę wprowadzić poprawny numer telefonu
Proszę wprowadzić poprawny adres e-mail
Proszę zaznaczyć wymagane zgody
Rozwiąż równanie:
20 5
Niepoprawny wynik