Na wynajem - Nowoczesna, funkcjonalna przestrzeń! Bydgoszcz, Okole

75.00 m²
80,00 zł/m2
parter
PRN-LW-7304

6 000 zł

Na wynajem - Nowoczesna, funkcjonalna przestrzeń!

Szczegóły oferty

Symbol oferty PRN-LW-7304
Powierzchnia 75,00 m²
Standard
Piętro parter
Liczba pięter w budynku 4
Stan lokalu do wprowadzenia
Okna PCV
Instalacje nowe
Rok budowy 2023
Rodzaj lokalu jednopoziomowy
Przeznaczenie lokalu biurowy, handlowy, usługowy
Gaz brak
Woda tak - miejska
Ogrzewanie podłogowe
Usytuowanie jednostronne
Możliwość parkowania tak
Położenie lokalu w pobliżu głównego ciągu pieszych
Witryna wystawowa od ulicy
Wejście od ulicy
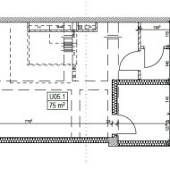
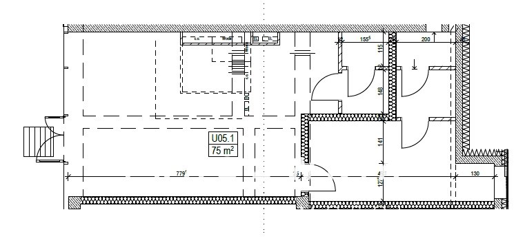
Pomieszczenia
Małgorzata Regent

Małgorzata Regent

Doradca ds. Nieruchomości

Napisz wiadomość 49 Ofert

Opis nieruchomości

OPIS OFERTY:

Oferujemy na wynajem atrakcyjny lokal użytkowy w nowoczesnym budynku o unikatowej bryle, położony na osiedlu Okole w Bydgoszczy. Idealne miejsce na biuro, punkt usługowy lub lokal handlowy. 
Lokal o powierzchni 75 m², położony jest na parterze w czteropiętrowym budynku.

UKŁAD POMIESZCZEŃ:

Stan deweloperski daje możliwość dostosowania wystroju wnętrza w zależności od wymogów przyszłego właściciela.
Powierzchnia lokalu - 75 m
², gdzie wyodrębnione zostały pomieszczenia wg załączonego rzutu.

STANDARD:

Przestronne wnętrze stwarza doskonałe warunki do prowadzenia działalności, swobodną aranżację i dopasowanie przestrzeni do indywidualnych potrzeb przedsiębiorcy.
Lokal zaprojektowano z myślą o komforcie i funkcjonalności:

- panoramiczne okna trzyszybowe,
- ogrzewanie podłogowe - gwarantuje komfort cieplny,
- rozprowadzone instalacje elektryczne i teletechniczne,
- przygotowanie pod klimatyzację (wyprowadzenie instalacji na dach).
Wysokość pomieszczeń kondygnacji parteru to 3,45m.
Nowoczesna przestrzeń stwarza idealne warunki do prowadzenia działalności – od biura po różnego rodzaju usługi.

BUDYNEK:

Obiekt to czterokondygnacyjny apartamentowiec o niepowtarzalnej, nowoczesnej bryle wzniesiony w 2023 r. Na parterze przewidziano część usługo – handlową. Na kondygnacjach wyższych znajdują się lokale mieszkalne.
Obiekt monitorowany.

LOKALIZACJA:

Nieruchomość położona jest w doskonale skomunikowanej części miasta. Lokalizacja w centrum zapewnia dostęp do różnorodnych usług oraz łatwą komunikację z pozostałymi dzielnicami miasta.
W sąsiedztwie znajdują się liczne punkty handlowo-usługowe.

Dodatkowym atutem jest parking przeznaczony dla właścicieli i klientów obiektu.

INFORMACJE DODATKOWE:

Szacunkowe koszty utrzymania to ok.: 12zł/m² brutto.
Podana cena jest wartością netto, do której należy doliczyć 23% podatku VAT.

Zapraszam na prezentację!

 

 

 

Lokalizacja nieruchomości

Doradca ds. Nieruchomości

Proszę wprowadzić poprawne imię i nazwisko
Proszę wprowadzić poprawny numer telefonu
Proszę wprowadzić poprawny adres e-mail
Proszę zaznaczyć wymagane zgody
Rozwiąż równanie:
29 7
Niepoprawny wynik