Lokal handlowo-usługowy pow. 90 m2, parter Bydgoszcz, Wyżyny

2 pokoje
90.00 m²
45,00 zł/m2
parter
PRN-LW-7333

4 050 zł

Lokal handlowo-usługowy pow. 90 m2, parter

Szczegóły oferty

Symbol oferty PRN-LW-7333
Powierzchnia 90,00 m²
Liczba pokoi 2
Rodzaj budynku pawilon
Opłaty wg liczników prąd, woda, Wywóz śmieci
Piętro parter
Stan lokalu do wykończenia
Typ kaucji do uzgodnienia
Okna aluminiowe
Instalacje nowe
Podst. materiał budowlany murowany
Rodzaj lokalu jednopoziomowy
Przeznaczenie lokalu biurowy, handlowo-usługowy, handlowy, inny
Przeznaczenie hali centrum handlowe, magazynowy
Czynsz najmu netto /m2 45 PLN
Gaz brak
Dojazd asfalt
Otoczenie osiedle
Położenie lokalu ulica osiedlowa
Witryna wystawowa duża
Wejście od ulicy
Podłogi kafle
Położenie obrzeża miasta
Plac utwardzany tak
Materiał konstrukcyjny murowany
Pomieszczenia
Liczba pomieszczeń sanitarnych 1
Danuta Bombicka

Danuta Bombicka

Specjalista ds. nieruchomości komercyjnych

Napisz wiadomość 78 Ofert

Opis nieruchomości

OPIS OFERTY:
Lokal handlowo-usługowy na Wyżynach, ok.90 m2.
Wejście bezpośrednio  z ulicy, duża witryna.
Miejsca parkingowe przed budynkiem, niepłatne.
W sąsiedztwie lokale usługowe.

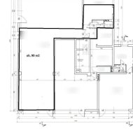
UKŁAD LOKALU:
Sala główna w kształcie prostokąta ok. 80 m2 plus zaplecze.
Wewnątrz możliwość dowolnej aranżacji.

STANDARD:
Na podłodze płytki.
Lokal do własnej aranżacji.

BUDYNEK:
Wolnostojący budynek, dobrze wyeksponowany.
Odnowiona elewacja, nowe witryny, drzwi wejściowe.
Możliwość umieszczenia szyldu na budynku.

LOKALIZACJA:
Wyżyny, w sąsiedztwie budownictwo wielorodzinne, lokale handlowo-usługowe.

INFORMACJE DODATKOWE:
Media opomiarowane.
Cena netto.

Zapraszam na prezentację!

Specjalista ds. nieruchomości komercyjnych

Proszę wprowadzić poprawne imię i nazwisko
Proszę wprowadzić poprawny numer telefonu
Proszę wprowadzić poprawny adres e-mail
Proszę zaznaczyć wymagane zgody
Rozwiąż równanie:
17 7
Niepoprawny wynik