Biura 652 m2, dobry standard. Bydgoszcz, Siernieczek

5 pokoi
652.00 m²
35,00 zł/m2
1 piętro
PRN-LW-7292

22 820 zł

Biura 652 m2, dobry standard.

Szczegóły oferty

Symbol oferty PRN-LW-7292
Powierzchnia 652,00 m²
Liczba pokoi 5
Rodzaj budynku biurowiec
Standard
Opłaty wg liczników CO, prąd, woda
Piętro 1
Liczba pięter w budynku 4
Stan lokalu bardzo dobry
Typ kaucji do uzgodnienia
Instalacje dobre
Rodzaj lokalu jednopoziomowy
Przeznaczenie lokalu biurowy, inny
Dojazd asfalt
Otoczenie zabudowa mieszana
Winda tak
Liczba wind 2
Usytuowanie dwustronne
Możliwość parkowania tak
Własny parking tak
Położenie lokalu spokojna ulica
Witryna wystawowa brak
Wejście od ulicy
Pomieszczenia
Liczba pomieszczeń magazynowych 2
Powierzchnia pomieszczeń socjalnych [m2] 1 m2
Liczba pomieszczeń sanitarnych 2
Danuta Bombicka

Danuta Bombicka

Specjalista ds. Nieruchomości Komercyjnych

Napisz wiadomość 79 Ofert

Opis nieruchomości

OPIS OFERTY:
Biura na Siernieczku (wschodnia część Bydgoszczy).
W dobrym  standardzie, przed budynkiem parking.
Duże okna gwarantują dobre doświetlenie pomieszczeń. 
Mieszczą się na pierwszym piętrze w budynku z windami.
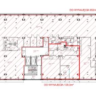
Przykładowa oferta wydzielonej części biurowej 652 m2, (rzut).     
Możliwość wynajęcia biur w różnych metrażach i układach pomieszczeń. 

UKŁAD LOKALU:
- dwa pomieszczenia typu open space ok. 302 m2; 106 m2
- gabinet ok. 31 m2
- pokój konferencyjny ok. 34 m2
- aneks kuchenny z  jadalnią ok. 58 m2
- sala konferencyjna ok. 34 m2
- chill room (strefa relaksu)
- cztery toalety
- trzy pomieszczenia pomocnicze, każde ok. 6 m2
- serwerownia


STANDARD:
Biura w dobrym standardzie.
Klimatyzacja.
Sieć komputerowa.
Winda.
Monitoring części wspólnych.
Ochrona budynku.
Własny parking.

BUDYNEK:
Biurowiec.

LOKALIZACJA:
Siernieczek

INFORMACJE DODATKOWE:
Cena netto.
Dodatkowe opłaty:
- media (energia, woda/ścieki, ogrzewanie) wg zużycia

Specjalista ds. Nieruchomości Komercyjnych

Proszę wprowadzić poprawne imię i nazwisko
Proszę wprowadzić poprawny numer telefonu
Proszę wprowadzić poprawny adres e-mail
Proszę zaznaczyć wymagane zgody
Rozwiąż równanie:
21 6
Niepoprawny wynik