Biura - pow. 312 m2 Bydgoszcz, Siernieczek

4 pokoje
312.00 m²
35,00 zł/m2
2 piętro
PRN-LW-7288

10 920 zł

Biura - pow. 312 m2

Szczegóły oferty

Symbol oferty PRN-LW-7288
Powierzchnia 312,00 m²
Liczba pokoi 4
Rodzaj budynku biurowiec
Standard
Opłaty wg liczników woda, prąd, CO
Piętro 2
Liczba pięter w budynku 4
Stan lokalu bardzo dobry
Typ kaucji do uzgodnienia
Instalacje dobre
Rodzaj lokalu jednopoziomowy
Przeznaczenie lokalu biurowy
Dojazd asfalt
Otoczenie zabudowa mieszana
Winda tak
Liczba wind 2
Usytuowanie dwustronne
Możliwość parkowania tak
Własny parking tak
Położenie lokalu spokojna ulica
Witryna wystawowa brak
Wejście od ulicy
Pomieszczenia
Liczba pomieszczeń magazynowych 2
Powierzchnia pomieszczeń socjalnych [m2] 1 m2
Liczba pomieszczeń sanitarnych 2
Danuta Bombicka

Danuta Bombicka

Specjalista ds. Nieruchomości Komercyjnych

Napisz wiadomość 78 Ofert

Opis nieruchomości

OPIS OFERTY:
Biura na Siernieczku (wschodnia część Bydgoszczy).
W dobrym  standardzie, przed budynkiem parking.
Duże okna gwarantują dobre doświetlenie pomieszczeń. 
Mieszczą się na drugim piętrze w budynku z windami.
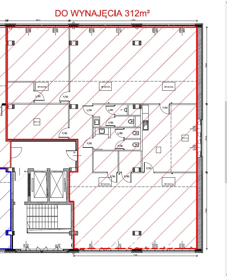
Przykładowa oferta wydzielonej części biurowej 312 m2, (rzut), w tym samym metrażu biura z podziałem na mniejsze pomieszczenia (rzut B).
Możliwość wynajęcia biur w różnych metrażach i układach pomieszczeń. 

UKŁAD LOKALU:
- dwa pomieszczenia typu open space ok. 87m2; 83 m
- gabinet ok. 38 m2
- aneks kuchenny z przestronną jadalnią
- sala konferencyjna
- dwie toalety
- dwa pomieszczenia pomocnicze (serwerownia, archiwum, itp.)

STANDARD:
Biura w dobrym standardzie.
Klimatyzacja.
Winda.
Monitoring części wspólnych.
Ochrona budynku.
Własny parking.

BUDYNEK:
Biurowiec.

LOKALIZACJA:
Siernieczek/

INFORMACJE DODATKOWE:
Cena netto.
Dodatkowe opłaty:
- media (energia, woda/ścieki, ogrzewanie)

Specjalista ds. Nieruchomości Komercyjnych

Proszę wprowadzić poprawne imię i nazwisko
Proszę wprowadzić poprawny numer telefonu
Proszę wprowadzić poprawny adres e-mail
Proszę zaznaczyć wymagane zgody
Rozwiąż równanie:
21 6
Niepoprawny wynik