Nowoczesna przestrzeń dla Twojego biznesu Bydgoszcz, Glinki

90.00 m²
10 500,00 zł/m2
2 piętro
PRN-LS-7278
Oblicz ratę kredytu

945 000 zł

Nowoczesna przestrzeń dla Twojego biznesu
Bez prowizji
Video

Szczegóły oferty

Inwestycja Biurowiec na Glinkach
Symbol oferty PRN-LS-7278
Powierzchnia 90,00 m²
Rodzaj budynku biurowo-usługowy
Standard
Piętro 2
Liczba pięter w budynku 2
Stan lokalu deweloperski
Okna PCV
Instalacje ELEKTRYCZNA, WODNA, GAZOWA
Rok budowy 2025
Przeznaczenie lokalu biurowy, gastronomia, handlowy, usługowy
Gaz brak
Woda tak - miejska
Ogrzewanie C.O. GAZOWE
Winda tak
Liczba wind 1
Usytuowanie jednostronne
Możliwość parkowania płatne
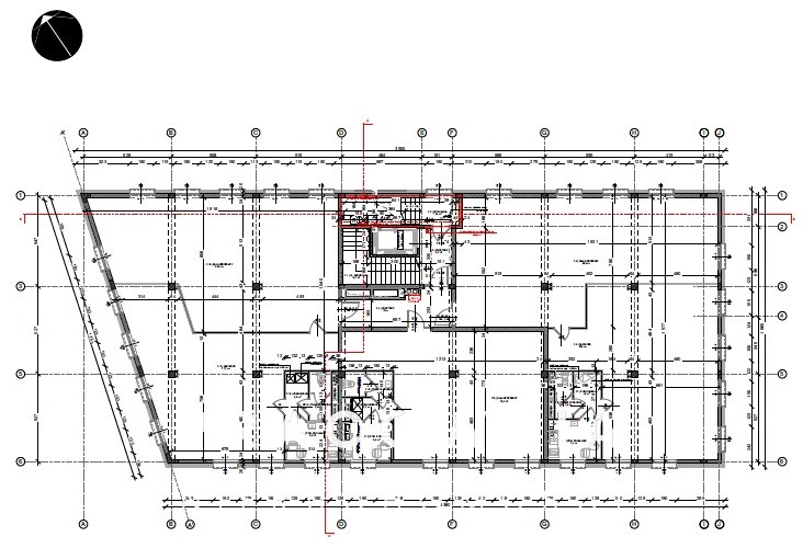
Pomieszczenia
Małgorzata Regent

Małgorzata Regent

Doradca ds. Nieruchomości

Napisz wiadomość 50 Ofert

Opis nieruchomości

OPIS OFERTY:
Oferujemy na sprzedaż lokal pod działalność biurową, usługową na osiedlu Glinki w Bydgoszczy.
Lokal o powierzchni 90,0 m², położony jest na 2 piętrze w dwupiętrowym budynku.

UKŁAD POMIESZCZEŃ:
Powierzchnia lokalu 8 - to 90,0 m², w skład, którego wchodzi sala o powierzchni 76,2 m² oraz toaleta i pomieszczenie socjalne – o powierzchni 13,8m².
Wysokość pomieszczeń to 3,5m.

STANDARD:
Wszystkie pomieszczenia w budynku zostały zaprojektowane z myślą o komforcie i funkcjonalności.
Przestronne wnętrza stwarzają doskonałe warunki do prowadzenia działalności na dużej powierzchni, a układ typu open space umożliwia swobodną aranżację i dopasowanie przestrzeni do indywidualnych potrzeb.
Każdy lokal wyposażony jest w toaletę dla klientów i pracowników oraz pomieszczenie gospodarcze z korytarzem, co zapewnia pełną wygodę użytkowania.
Lokale idealnie sprawdzą się m.in. jako siedziby gabinetów medycznych, kancelarii, biur projektowych, szkół językowych czy różnego rodzaju firm usługowych.

BUDYNEK:
Nowoczesny, trzykondygnacyjny budynek usługowy o łącznej powierzchni 1506,8 m² został zaplanowany tak, aby spełniał oczekiwania wymagających przedsiębiorców.

Parter o łącznej powierzchni 426,8m² dostępny:
- lokal 1 o powierzchni: 101,6m²

I Piętro o łącznej powierzchni 544,9 m² dostępny: 
- lokal 5 o powierzchni: 90,8m²
- lokal 6 o powierzchni: 192,2 m²

II Piętro o łącznej powierzchni 535,1m² dostępny:
- lokal 7 o powierzchni: 197,0 m²
- lokal 8 o powierzchni: 90,0 m²
- lokal 9 o powierzchni: 191,8 m²

Na parterze znajduje się toaleta ogólnodostępna dla klientów, a dla wygody wszystkich użytkowników budynek został wyposażony w windę.
W całym obiekcie zastosowano ogrzewanie podłogowe gazowe, wentylację mechaniczną oraz klimatyzację (jednostka na każdy lokal).

LOKALIZACJA:
Nieruchomość położona jest w doskonale skomunikowanej części miasta — blisko drogi krajowej nr 5 i w niewielkiej odległości od centrum, co gwarantuje szybki dojazd we wszystkich kierunkach.
W sąsiedztwie znajdują się liczne punkty handlowo-usługowe: Carrefour, Lidl, Rossmann, paczkomaty oraz inne udogodnienia.
Dodatkowym atutem jest własny parking przeznaczony dla właścicieli i klientów obiektu.

INFORMACJE DODATKOWE:
Podana cena jest wartością netto, do której należy doliczyć 23% podatku VAT.

Zapraszam na prezentację!

Materiał wideo

Lokalizacja nieruchomości

Kalkulatory

Kalkulator kredytowy

Wysokość raty

PLN
%

Kalkulator kosztów

Taksa notarialna
(opłata notarialna)

Wniosek o wpis do WKW

VAT od prowizji
agencji nieruchomości

Vat od taksy notarialnej
(opłaty notarialnej)

Prowizja agencji nieruchomości

Wypisy aktu notarialnego

Razem

Uwaga: mogą wystąpić dodatkowe opłaty za założenie księgi wieczystej oraz ustanowienie hipoteki.

PLN
PLN
PLN
PLN
PLN
%
PLN

Podobne oferty

Bez prowizji
Video

Nowoczesna przestrzeń dla Twojego biznesu

Bydgoszcz, Glinki

91 m2 10 500,00 zł/m2
Bez prowizji
Video

Doradca ds. Nieruchomości

Proszę wprowadzić poprawne imię i nazwisko
Proszę wprowadzić poprawny numer telefonu
Proszę wprowadzić poprawny adres e-mail
Proszę zaznaczyć wymagane zgody
Rozwiąż równanie:
26 4
Niepoprawny wynik