| Inwestycja | Biurowiec na Glinkach | 
| Symbol oferty | PRN-LS-7277 | 
| Powierzchnia | 191,80 m² | 
| Powierzchnia użytkowa [m2] | 191,80 m² | 
| Rodzaj budynku | biurowo-usługowy | 
| Standard | |
| Piętro | 2 | 
| Liczba pięter w budynku | 2 | 
| Stan lokalu | deweloperski | 
| Okna | PCV | 
| Instalacje | ELEKTRYCZNA, WODNA, GAZOWA | 
| Rok budowy | 2025 | 
| Przeznaczenie lokalu | biurowy, gastronomia, handlowy, usługowy | 
| Gaz | brak | 
| Woda | tak - miejska | 
| Ogrzewanie | C.O. GAZOWE | 
| Winda | tak | 
| Liczba wind | 1 | 
| Usytuowanie | dwustronne | 
| Możliwość parkowania | płatne | 
| Pomieszczenia | |
 
                        
                    
OPIS OFERTY:
Oferujemy na sprzedaż lokal pod działalność biurową, usługową na osiedlu Glinki w Bydgoszczy.
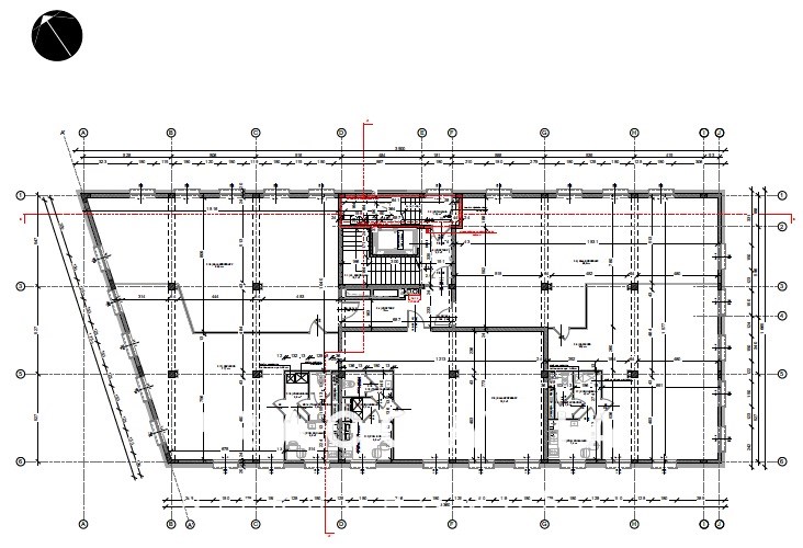
Lokal o powierzchni 191,8 m², położony jest na 2 piętrze w dwupiętrowym budynku.
UKŁAD POMIESZCZEŃ:
Powierzchnia lokalu 9 - to 191,8 m², w skład, którego wchodzi sala o powierzchni 99,9 m², zaplecze 82,6 m², oraz toaleta i pomieszczenie socjalne – o powierzchni 14,5 m².
Wysokość pomieszczeń to 3,5m.
STANDARD:
Wszystkie pomieszczenia w budynku zostały zaprojektowane z myślą o komforcie i funkcjonalności.
Przestronne wnętrza stwarzają doskonałe warunki do prowadzenia działalności na dużej powierzchni, a układ typu open space umożliwia swobodną aranżację i dopasowanie przestrzeni do indywidualnych potrzeb.
Każdy lokal wyposażony jest w toaletę dla klientów i pracowników oraz pomieszczenie gospodarcze z korytarzem, co zapewnia pełną wygodę użytkowania.
Lokale idealnie sprawdzą się m.in. jako siedziby gabinetów medycznych, kancelarii, biur projektowych, szkół językowych czy różnego rodzaju firm usługowych.
BUDYNEK:
Nowoczesny, trzykondygnacyjny budynek usługowy o łącznej powierzchni 1506,8 m² został zaplanowany tak, aby spełniał oczekiwania wymagających przedsiębiorców.
Parter o łącznej powierzchni 426,8m² dostępny:
- lokal 3 o powierzchni: 200,3m²
I Piętro o łącznej powierzchni 544,9 m² dostępny: 
- lokal 5 o powierzchni: 90,8m²
- lokal 6 o powierzchni: 192,2 m²
II Piętro o łącznej powierzchni 535,1m² dostępny:
- lokal 7 o powierzchni: 197,0 m²
- lokal 8 o powierzchni: 90,0 m²
- lokal 9 o powierzchni: 191,8 m²
Na parterze znajduje się toaleta ogólnodostępna dla klientów, a dla wygody wszystkich użytkowników budynek został wyposażony w windę.
W całym obiekcie zastosowano ogrzewanie podłogowe gazowe, wentylację mechaniczną oraz klimatyzację (jednostka na każdy lokal).
LOKALIZACJA:
Nieruchomość położona jest w doskonale skomunikowanej części miasta — blisko drogi krajowej nr 5 i w niewielkiej odległości od centrum, co gwarantuje szybki dojazd we wszystkich kierunkach.
W sąsiedztwie znajdują się liczne punkty handlowo-usługowe: Carrefour, Lidl, Rossmann, paczkomaty oraz inne udogodnienia.
Dodatkowym atutem jest własny parking przeznaczony dla właścicieli i klientów obiektu.
INFORMACJE DODATKOWE:
Podana cena jest wartością netto, do której należy doliczyć 23% podatku VAT.
Zapraszam na prezentację!
 
        Wysokość raty
 
            
                    Taksa notarialna 
 (opłata notarialna)
                    
                
Wniosek o wpis do WKW
                    VAT od prowizji 
 agencji nieruchomości
                    
                
                    Vat od taksy notarialnej 
 (opłaty notarialnej)
                    
                
Prowizja agencji nieruchomości
Wypisy aktu notarialnego
Razem
Uwaga: mogą wystąpić dodatkowe opłaty za założenie księgi wieczystej oraz ustanowienie hipoteki.
Doradca ds. Nieruchomości