Hala ogrzewana z biurami 367 m2. Bydgoszcz, Kapuściska

367.00 m²
0,00 zł/m2
PRN-HW-7320

8 180 zł

Hala ogrzewana z biurami 367 m2.

Szczegóły oferty

Symbol oferty PRN-HW-7320
Powierzchnia 367,00 m²
Opłaty wg liczników gaz, prąd, woda
Typ kaucji do uzgodnienia
Podst. materiał budowlany murowany
Przeznaczenie hali produkcyjno-magazynowy
Ogrzewanie C.O. GAZOWE
Alarm tak
Położenie blisko centrum
Materiał konstrukcyjny murowany
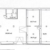
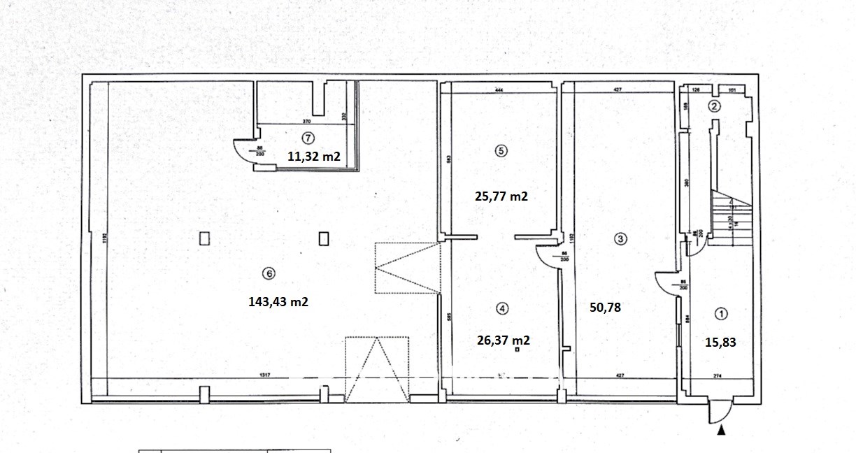
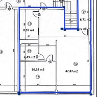
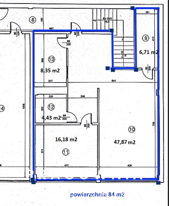
Pomieszczenia
Danuta Bombicka

Danuta Bombicka

Specjalista ds. Nieruchomości Komercyjnych

Napisz wiadomość 79 Ofert

Opis nieruchomości

OPIS OFERTY:

Hala ogrzewana usługowo- magazynowa z częścią biurową o łącznej powierzchni 367m2.
Hala ok. 283 m2  podzielona na mniejsze pomieszczenia (rzut). 
Biura mieszczą się na pierwszym piętrze (rzut).
Teren ogrodzony z parkingiem na kila aut.


 

UKŁAD HALI:

Wysokość 3,3 m.
Brama z poziomu "0" o wymiarach 2,5 x 2,5 m.
Posadzka beton/płytki.



 

STANDARD:
Ogrzewanie gazowe.

Obiekt wyposażony w instalacje:
-energetyczną
-gazową

-kanalizacyjną

-wodną
-internet/światłowód
- alarm

 

BUDYNEK:

Konstrukcja murowana.
 

LOKALIZACJA:

Osiedle Kapuściska.

W niewielkiej odległości od przystanków komunikacji miejskiej (tramwaj, autobus).
 

INFORMACJE DODATKOWE:
Cena netto.

Specjalista ds. Nieruchomości Komercyjnych

Proszę wprowadzić poprawne imię i nazwisko
Proszę wprowadzić poprawny numer telefonu
Proszę wprowadzić poprawny adres e-mail
Proszę zaznaczyć wymagane zgody
Rozwiąż równanie:
30 5
Niepoprawny wynik