Do wynajęcia hala i budynek biurowy. Bydgoszcz, Bydgoski Park Przemysłowy

4000.00 m²
27,50 zł/m2
PRN-HW-7305

110 000 zł

Do wynajęcia hala i budynek biurowy.

Szczegóły oferty

Symbol oferty PRN-HW-7305
Powierzchnia 4 000,00 m²
Powierzchnia działki [m2] 16 000 m²
Standard
Kształt działki trapez
Rok budowy 2025
Przeznaczenie hali produkcyjno-magazynowy
Czynsz najmu netto /m2 28 PLN
Ogrzewanie C.O. Z SIECI MIEJSKIEJ
Położenie teren przemysłowy
Plac utwardzany tak
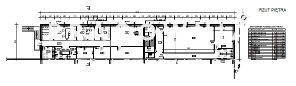
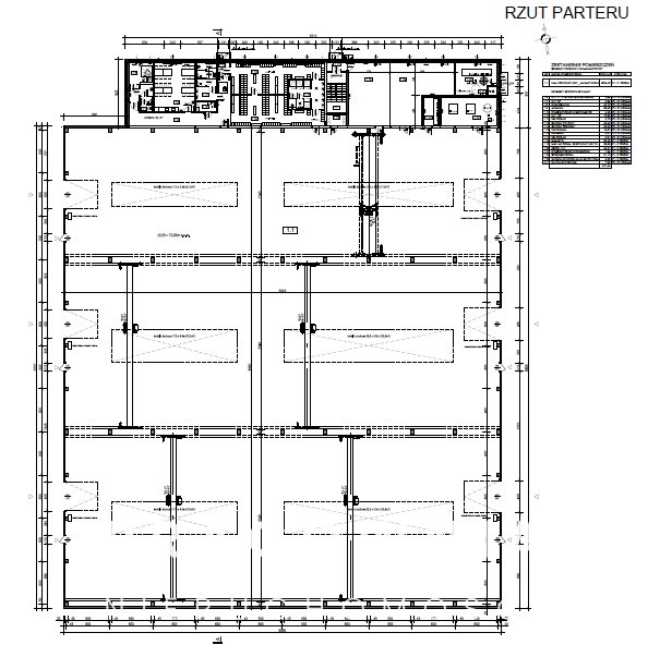
Pomieszczenia
Małgorzata Regent

Małgorzata Regent

Doradca ds. Nieruchomości

Napisz wiadomość 49 Ofert

Opis nieruchomości

OPIS OFERTY:

Hala o powierzchni ok. 4000 m2. o przeznaczeniu produkcyjno-magazynowym.
Budynek biurowy 2 kondygnacyjny o powierzchni ok. 1000m2.

HALA:

Wymiary hali 60mx66m, wysokość w świetle konstrukcji ok. 10m. Hala 3-nawowa.
Układ konstrukcji przygotowany pod suwnice o udźwigu: Q=8T, Q=16T.

Konstrukcja żelbetowa o odporności ogniowej 3800MJ.
Posadzka przemysłowa.
Ogrzewanie z sieci miejskiej KPEC.
Istnieje możliwość rozbudowy hali o kolejny 1.000m2 lub postawienia wiaty.

BUDYNEK BIUROWY:

Budynek murowany dwukondygnacyjny (parter, piętro), z wyodrębnionymi pomieszczeniami biurowymi, socjalnymi oraz użytkowymi – układ wg załączonego rzutu.
Ogrzewanie i chłodzenie z głębinowej pompy ciepła (wykonane odwierty).

Istnieje możliwość rozbudowy budynku biurowo-socjalnego.

STANDARD:

Hala ogrzewana. Posadzka przemysłowa. Teren ogrodzony. Wjazd możliwy poprzez dwie bramy. Droga wokół budynku, 3 bramy wjazdowe na halę.
Miejsca postojowe na terenie nieruchomości.
Woda deszczowa odprowadzana do gruntu poprzez skrzynki rozsączające.

LOKALIZACJA:

Bydgoski Park Przemysłowy.

INFORMACJE DODATKOWE:

Wolna od zaraz.
Podana cena jest wartością netto - za wynajem hali oraz budynku biurowego.

DODATKOWE OPŁATY:

- opłaty za media + podatek od nieruchomości.


 

Lokalizacja nieruchomości

Podobne oferty

Hale magazynowe, wysokie składowanie

Bydgoszcz, Bydgoski Park Przemysłowy

4 284 m2 19,00 zł/m2
Video

Doradca ds. Nieruchomości

Proszę wprowadzić poprawne imię i nazwisko
Proszę wprowadzić poprawny numer telefonu
Proszę wprowadzić poprawny adres e-mail
Proszę zaznaczyć wymagane zgody
Rozwiąż równanie:
25 4
Niepoprawny wynik