Nowoczesny dom typu bliźniak w Starym Fordonie! Bydgoszcz, Fordon

5 pokoi
116.00 m²
7 672,41 zł/m2
PRN-DS-7280
Oblicz ratę kredytu

890 000 zł

Nowoczesny dom typu bliźniak w Starym Fordonie!

Szczegóły oferty

Symbol oferty PRN-DS-7280
Powierzchnia 116,00 m²
Powierzchnia działki [m2] 130 m²
Liczba pokoi 5
Liczba sypialni 3
Rodzaj domu bliźniak
Standard
Liczba pięter w budynku 2
Okna PCV
Instalacje ELEKTRYCZNA, WODNA, GAZOWA
Balkon jest
Liczba balkonów 2
Liczba tarasów 1
Pokrycie dachu dachówka betonowa
Stan budynku do wykończenia
Ogrodzenie działki ogrodzona
Rok budowy 2025
Gaz jest
Woda jest
Ogrzewanie gazowe
Tarasy taras
Pomieszczenia
Rodzaj kuchni aneks kuchenny
Typ łazienki razem z wc
Liczba łazienek 2
Liczba przedpokoi 1
Małgorzata Regent

Małgorzata Regent

Doradca ds. Nieruchomości

Napisz wiadomość 47 Ofert

Opis nieruchomości

OPIS OFERTY:

Oferujemy na sprzedaż dom typu bliźniak z kameralnymi mieszkaniami w Starym Fordonie. Przemyślany i przestronny układ funkcjonalny z powodzeniem spełni oczekiwania nowych właścicieli. Bardzo ciekawa propozycja dla rodziny!
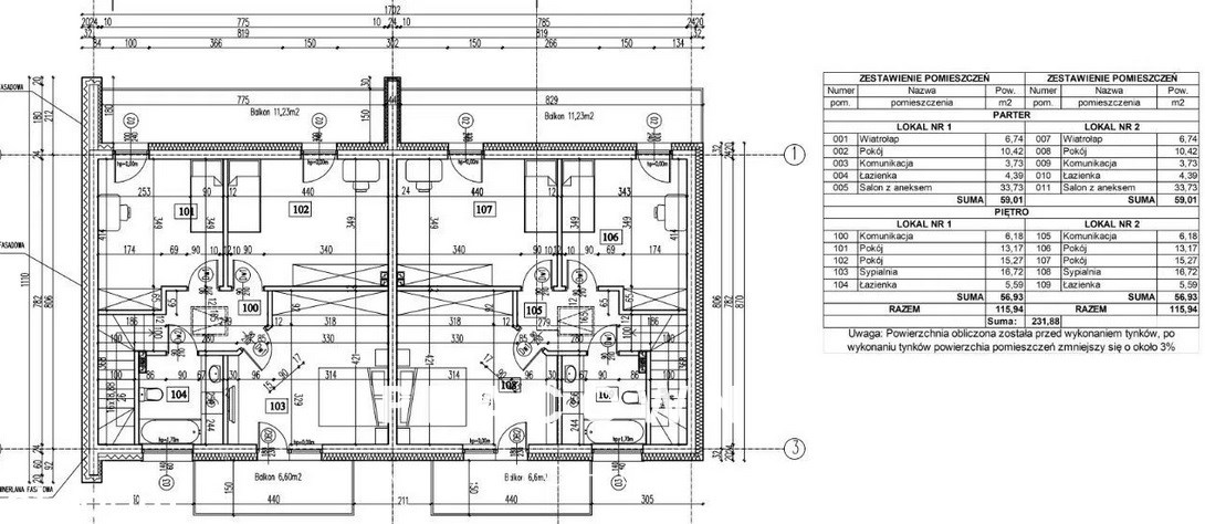
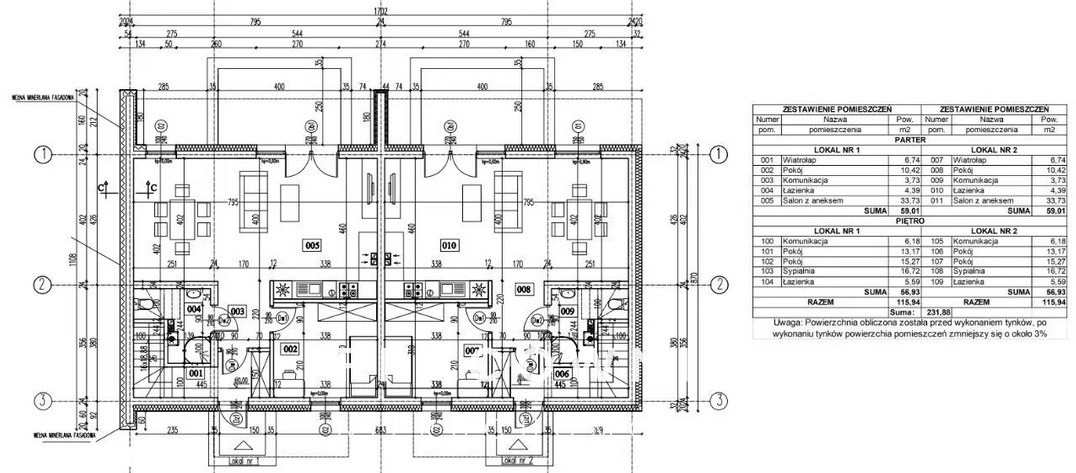
Lokal (segment) nr 1 o powierzchni domu 116 m2, działki ok. 130 m2.
Na parterze obszernym salon z aneksem kuchennym, pokój, łazienka. Z salonu wyjście taras i własny ogródek. Na piętrze trzy sypialnie i łazienka.
Umiejscowienie w cichej okolicy, w pobliżu nowej zabudowy jedno i wielorodzinnej.

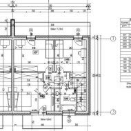
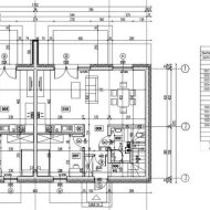
UKŁAD POMIESZCZEŃ:

PARTER:
wiatrołap - 6,74m2
komunikacja - 10,42 m2
salon z aneksem kuchennym - 33,73 m2
pokój – 10,42 m2
łazienka - 4,39 m2

PIĘTRO:
komunikacja - 6,18 m2
pokój – 13,17 m2
- p
okój - 15,27 m2
sypialnia - 16,72 m2
garderoba - 2,77 m2
łazienka - 5,59 m2
- 2 balkony - 6,6 m2 i 11,23m2

STANDARD:
- Dom jest w stanie deweloperskim.
- Dach drewniany, prefabrykowany pokryty dachówką betonową w kolorze grafitowym.
- Ściany wykonane z betonu komórkowego. Ściany zewnętrzne ocieplone styropianem o gr. 20 cm. Od zewnątrz wykończone tynkiem mineralnym, od środka tynkiem gipsowym.
- Strop poddasza nieużytkowego ocieplony celulozą grubości min. 30 cm.
- Okna trzyszybowe VEKA, w kolorze grafitowym z zewnątrz, białym od środka.
- Podłoga ocieplona styropianem gr. 20cm, posadzka betonowa.
- Ogrzewanie podłogowe, zasilane kotłem gazowym kondensacyjnym Vaillant.
- Instalacje: elektryczna, telewizyjna, internetowa, instalacja wodno-kanalizacyjna i centralnego ogrzewania.
- Ogrodzenie działki panelowe.
- Przynależny ogródek – 130m2
- Miejsce postojowe w ogrodzonym terenie, brama sterowana pilotem.

LOKALIZACJA:

W pobliżu tereny spacerowe – lasek przy ul. Kasztelańskiej, Bulwary Wiślane i Rynek w Starym Fordonie. Nieopodal sklepy spożywcze i markety, komunikacja miejska, przedszkole i żłobek, szkoła podstawowa.

Zapraszam na prezentacje.

Lokalizacja nieruchomości

Kalkulatory

Kalkulator kredytowy

Wysokość raty

PLN
%

Kalkulator kosztów

Taksa notarialna
(opłata notarialna)

Wniosek o wpis do WKW

VAT od prowizji
agencji nieruchomości

Vat od taksy notarialnej
(opłaty notarialnej)

Prowizja agencji nieruchomości

Wypisy aktu notarialnego

Razem

Uwaga: mogą wystąpić dodatkowe opłaty za założenie księgi wieczystej oraz ustanowienie hipoteki.

PLN
PLN
PLN
PLN
PLN
%
PLN

Podobne oferty

Bez prowizji

Świetna oferta - Fordon

Bydgoszcz, Fordon

4 pokoje 91 m2 9 662,95 zł/m2
Bez prowizji
Bez prowizji

Świetna oferta - Fordon

Bydgoszcz, Fordon

4 pokoje 91 m2 9 553,51 zł/m2
Bez prowizji
Bez prowizji

Dom, Osiedle Bajkowe – miejsce w harmonii z naturą

Bydgoszcz, Fordon

4 pokoje 98 m2 8 649,97 zł/m2
Bez prowizji

Nowoczesny dom typu bliźniak w Starym Fordonie!

Bydgoszcz, Fordon

5 pokoi 116 m2 8 534,48 zł/m2

Doradca ds. Nieruchomości

Proszę wprowadzić poprawne imię i nazwisko
Proszę wprowadzić poprawny numer telefonu
Proszę wprowadzić poprawny adres e-mail
Proszę zaznaczyć wymagane zgody
Rozwiąż równanie:
20 8
Niepoprawny wynik