Dom do remontu na dużej działce. Bydgoszcz, Flisy

5 pokoi
150.00 m²
5 326,67 zł/m2
PRN-DS-7479
Oblicz ratę kredytu

799 000 zł

Dom do remontu na dużej działce.

Szczegóły oferty

Symbol oferty PRN-DS-7479
Powierzchnia 150,00 m²
Powierzchnia użytkowa [m2] 108,22 m²
Powierzchnia działki [m2] 994 m²
Liczba pokoi 5
Liczba sypialni 4
Rodzaj domu wolnostojący
Technologia budowlana beton, cegła
Liczba pięter w budynku 1
Garaż w poziomie piwnicy
Okna drewniane
Zagosp. działki częściowo zagospodarowana
Ukształtowanie działki lekko nachylona
Pokrycie dachu papa
Stan budynku do remontu
Podpiwniczenie tak
Rok budowy 1970
Gaz jest
Woda tak - miejska
Otoczenie osiedle
Ogrzewanie piec węglowy
Tarasy taras
Prąd jest
Pomieszczenia
Powierzchnia pokoi 17,01 m2; 16,60 m2; 16,40 m2; 16,20 m2; 16 m2
Typ kuchni oddzielna
Powierzchnia kuchni 10,20 m2
Liczba łazienek 1
Ewelina Czajkowska

Ewelina Czajkowska

Doradca ds. nieruchomosci

Napisz wiadomość 108 Ofert

Opis nieruchomości

OPIS OFERTY:
Na sprzedaż dom położony na osiedlu Flisy w sąsiedztwie zabudowy jednorodzinnej.
Budynek do generalnego remontu posadowiony na działce o powierzchni 994 m2.
Ulica przebiega w bezpośrednim sąsiedztwie Kanału Bydgoskiego, co zapewnia świetne tereny spacerowe i rekreacyjne.

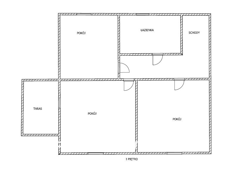
UKŁAD POMIESZCZEŃ:
PARTER:
- 2 pokoje o powierzchni po 16,6 m2, z jednego pokoju wyjście na werandę,
- kuchnia 10,2m2
- Hall - około 4,5 m2
- Łazienka z wc 4,80 m2

PIĘTRO:
-3 pokoje  10,2 m2; 16 m2 i 17 m2, z jednego pokoju wyjście na taras.
- łazienka
- Hall

PIWNICA:
- pralnia
- kotłownia
- piwnica gospodarcza
- garaż

STANDARD WYKOŃCZENIA:
Nieruchomość do remontu i własnej aranżacji.
Stolarka okienna i drzwiowa do wymiany.
Ogrzewanie piecem starego typu na węgiel.

LOKALIZACJA:
Dom położony na osiedlu Flisy w sąsiedztwie zabudowy jednorodzinnej.
Szybki dojazd do centrum Bydgoszczy.  
W pobliżu przedszkole i przystanek komunikacji miejskiej.

Zapraszam na prezentację! 

Lokalizacja nieruchomości

Kalkulatory

Kalkulator kredytowy

Wysokość raty

PLN
%

Kalkulator kosztów

Podatek od czynności cywilno-prawnych

Taksa notarialna
(opłata notarialna)

Wniosek o wpis do WKW

VAT od prowizji
agencji nieruchomości

Vat od taksy notarialnej
(opłaty notarialnej)

Prowizja agencji nieruchomości

Wypisy aktu notarialnego

Razem

Uwaga: mogą wystąpić dodatkowe opłaty za założenie księgi wieczystej oraz ustanowienie hipoteki.

PLN
PLN
PLN
PLN
PLN
PLN
%
PLN

Doradca ds. nieruchomosci

Proszę wprowadzić poprawne imię i nazwisko
Proszę wprowadzić poprawny numer telefonu
Proszę wprowadzić poprawny adres e-mail
Proszę zaznaczyć wymagane zgody
Rozwiąż równanie:
10 6
Niepoprawny wynik