Dom w Osielsku - stan deweloperski, 2026 Osielsko

5 pokoi
151.00 m²
8 609,27 zł/m2
PRN-DS-7387
Oblicz ratę kredytu

1 300 000 zł

Dom w Osielsku - stan deweloperski, 2026
Bez prowizji

Szczegóły oferty

Symbol oferty PRN-DS-7387
Powierzchnia 151,00 m²
Powierzchnia użytkowa [m2] 129,00 m²
Powierzchnia działki [m2] 489 m²
Liczba pokoi 5
Rodzaj domu wolnostojący
Standard
Kształt działki prostokąt
Stan budynku do wykończenia
Rok budowy 2026
Woda jest
Ogrzewanie pompa ciepła
Prąd jest
Kanalizacja tak
Dorota Thomas

Dorota Thomas

Doradca ds. nieruchomosci

Napisz wiadomość 134 Ofert

Opis nieruchomości

Inwestycja składająca się z trzech domów wolnostojących, położonych w spokojnej części Osielska. 
Domy o powierzchni 151 m2 znajdują się na działkach o pow. 457 m2, 501 m2 i 489 m2.
Dostępne media - kanalizacja, woda, prąd. 

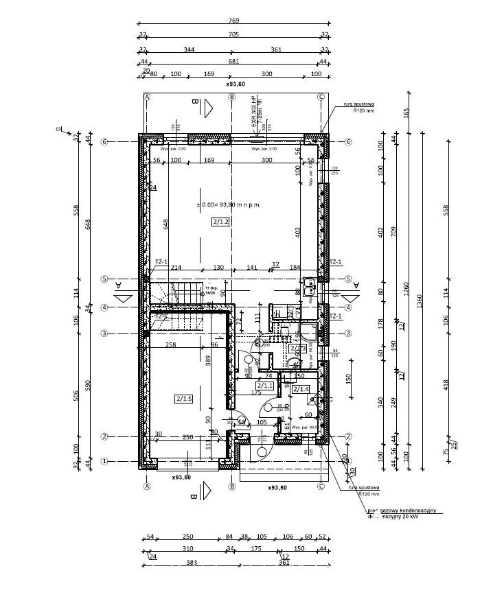
W skład prezentowanego domu wchodzą: 
Parter  77 m2
- salon z aneksem kuchennym 48,46 m2
- WC  3,38 m2
- wiatrołap 4,23  m2
- pom. gosp. 3,62 m2
- garaż 18,02 m2
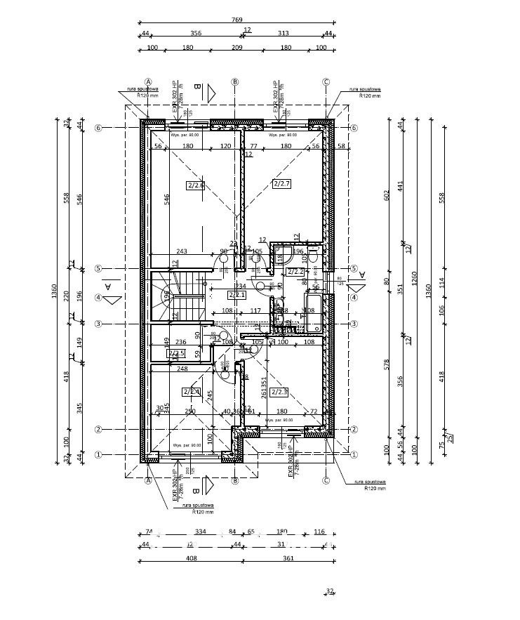
Piętro 73,55 m2
- pokój  19,17 m2 (możliwość wyodrębnienia garderoby lub dodatkowej łazienki)
- pokój  14,65 m2
- pokój  10,94 m2
- pokój 11,71 m2
- łazienka 6,46m2
- pom. gosp. 3,40 m2
- korytarz 7,22 m2


Standard techniczny:
- materiał - silka/solbet
- okna PCV, trzyszybowe, firmy Schuco
- rolety zewnętrzne
- w salonie z wyjściem na taras przesuwne okno panoramiczne
- ocieplenie ścian styropian 20 cm, dachu wełna 30 cm
- ogrzewanie podłogowe
- pompa ciepła
- ogrodzenie, kostka brukowa
- dachówka ceramiczna w kolorze antracyt
- tynki cementowo wapienne i gipsowe
- drzwi antywłamaniowe KNT
- drzwi garażowe Wiśniowski z napędem

Zakończenie budowy koniec 2026 roku.

Przedstawione zdjęcia przedstawiają poprzednią inwestycję dewelopera.

Zapraszam na prezentację! 



 

Lokalizacja nieruchomości

Kalkulatory

Kalkulator kredytowy

Wysokość raty

PLN
%

Kalkulator kosztów

Taksa notarialna
(opłata notarialna)

Wniosek o wpis do WKW

VAT od prowizji
agencji nieruchomości

Vat od taksy notarialnej
(opłaty notarialnej)

Prowizja agencji nieruchomości

Wypisy aktu notarialnego

Razem

Uwaga: mogą wystąpić dodatkowe opłaty za założenie księgi wieczystej oraz ustanowienie hipoteki.

PLN
PLN
PLN
PLN
PLN
%
PLN

Podobne oferty

Bez prowizji

Dom wlolnostojący w spokojnej części Osielska

Osielsko

5 pokoi 151 m2 8 609,27 zł/m2
Bez prowizji
Bez prowizji

Top ofera! Dom w Osielsku - 2026

Osielsko

5 pokoi 151 m2 8 609,27 zł/m2
Bez prowizji
Bez prowizji
Video

Działka 422 m2 - bliźniak w Maksymilianowie

Osielsko

6 pokoi 132 m2 7 006,89 zł/m2
Bez prowizji
Video

Nowoczesny dom bliźniaczy |154,5 m² | Osielsko

Osielsko

5 pokoi 155 m2 7 766,99 zł/m2

Doradca ds. nieruchomosci

Proszę wprowadzić poprawne imię i nazwisko
Proszę wprowadzić poprawny numer telefonu
Proszę wprowadzić poprawny adres e-mail
Proszę zaznaczyć wymagane zgody
Rozwiąż równanie:
23 9
Niepoprawny wynik